Hjartagarðurinn
Um daginn skapaðist örlítil umræða á twitter um örlög svæðisins sem afmarkast af Laugavegi, Smiðjustíg, Hverfisgötu og Klapparstíg. Í seinni tíð oft nefnt Hjartagarðurinn en gárungarnir (ég) hafa nefnt Steinsteypugarðinn, eftir að uppbyggingunni sem hófst þar 2010 lauk.
Og þó það sé stutt síðan ég sendi þér seinast skeyti, þá er þetta tilvalið tækifæri til að skoða þennan reit örlítið aftur í söguna.
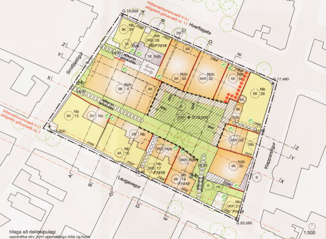
Deiliskipulag fyrir reitinn var samþykkt 2004 og gerði ráð fyrir töluvert mikill uppbyggingu. Byggingarmagn átti að fara úr 9987 m2 í 15.313m2.
Svona leit svæðið út þá:

og svona var deiliskipulagið samþykkt, 2004:

Ástandið 2004 má einnig sjá á þessari loftmynd, sem tekin var 18. júlí, 2004:

Þarna má sjá "skúraröðina" sem hýsti Grammið, bakvið Laugaveg 17. Grand Rokk er þarna á Smiðjustíg og innst inni á bílastæðinu sem er á lóð Hverfisgötu 30 er hús sem hafði heimilisfangið Hverfisgata 32b.Bakvið Hverfisgötu 32 var gamall steinbær, Hverfisgata 32a. (Athugaðu að húsnúmerin á myndinni miða við núverandi lóðamörk).
Á árunum 2004-2006 urðu talsverð viðskipti með eignir á reitnum. Reykjavíkurborg keypti Laugaveg 19 og 19b árið 2006. Áður hafði borgin eignast bakhúsið við Laugaveg 17 og Hverfisgötu 32, 32A, 32B og 34. Lóðina á Hverfisgötu 30 átti borgin einnig. Grand Rokk var selt á 100 milljónir til fjárfesta árið 2006, án aðkomu borgarinnar.
Hoppum nú fram til 15. júlí, 2007:

Hér má sjá útisvæði við Sirkus við Klapparstíg. Bæði bakhúsin á Hverfisgötu 32 hafa verið rifin. Það er augljós akvegur á baklóð Laugavegs 19, þar sem bílar eru geymdir. Hverfisgata 30 er enn stórt bílastæði. Fyrir utan Grand Rokk er komið tjald.
20. júní ári seinna, 2008 eru svo bakhúsin að Laugavegi 17 horfin:

Þar var m.a. Gramm með plötbúð. Þar var Kvennalistinn lengi með skrifstofur og ýmsar verslanir höfðu þar styttri og lengri viðdvöl, svo sem Illgresi, Baka til og ONI.

Árið 2008 voru töluverðar deilur um framtíð reitsins. Til stóð að rífa Laugaveg 21, hið svokallaða Hljómalindarhús, en frá því var fallið þegar húsið var friðað. Hugmyndir eiganda flestra lóðanna, Festa, gerðu á tímabili ráð fyrir 11 hæða hótelturni á miðjum reitnum. Allt vorið og sumarið þetta ár voru töluverðar deilur um framtíðarskipulag við Laugaveg, sem snérust einna helst um verndun húsa og götumyndar. Það átti við um þennan reit, en ekki síst húsin við Laugaveg 4-6. Flest húsin Hverfisgötumegin stóðu auð og voru nærri því ónýt.
Á haustmánuðum höfðu hugmyndir eigandans tekið nokkrum stakkaskiptum, eflaust eftir þrýsting frá borgaryfirvöldum og almenningi. Þá var gert ráð fyrir torgi á reitnum og hæð húsa lækkuð, auk þess sem eldri húsum var hlíft og gert ráð fyrir að þau yrðu endurnýjuð. Töluvertð breyting frá deiliskipulaginu sem samþykkt var 2004. Svona var sagt frá áformunum í október 2008:


Þó nokkur tími átti þó eftir að líða þangað til nýtt deiliskipulag var samþykkt og framkvæmdir hófust. Í millitíðinni tók einhver ákvörðun um að tyrfa svæðið og gera úr því almenningsgarð. Hvort það var borgin eða lóðareigandann veit ég ekki. En þar varð Hjartagarðurinn til. Svona leit hann út í júlí 2010.

Grand rokk er orðið að Faktorý og þakið á Hverfisgötu 28 er rifið til hálfs eftir eldsvoða í janúar 2010. Eftir það var húsið nánast ónýtt. Við Hverfisgötuna stendur lítill krani sem eflaust hefur verið nýttur til að mála vegglistaverk en svæðið var vel skreytt af götulist.
Tveimur árum síðar er allt nokkurnveginn við það sama. Þó hefur bárujárnsgrindverkið við Sirkus verið rifið og portið þar nýtt sem bílastæði. Grand Rokk breyttist í Faktorý 2010 og þar fyrir utan var eitthvað sem var annaðhvort ofvaxið borðtennisborð eða battavöllur. Ég bara man það ekki almennilega.

Í janúar 2013 er loks samþykkt nýtt deiliskipulag fyrir reitinn sem byggir á þeim hugmyndum sem voru kynntar í október 2008. Þar með voru örlog hins unga Hjartagarðs endanlega ráðin.

Á skýringarmyndum með skipulaginu má sjá að gert var ráð fyrir ljósastaurum á torginu með sérstökum festingum. Tilgangur þeirra var að hægt yrði að strengja segl á milli þeirra fyrir markaði eða aðrar uppákomur.


Í greinargerð með skipulaginu var m.a. lögð áhersla á að það myndi bæta aðstöðu til tónleikahalds og halda sögu poppmenningar á svæðinu til haga.

Framkvæmdir hófust svo 2014 og svona leit svæðið út í júlí það ár:

Á loftmynd frá því í júlí í fyrra má svo sjá endanlega mynd reitsins:

Ég veit ekki alveg hvað mér finnst um þetta svæði. Að mörgu leyti er það ágætlega heppnað og það er sannarlega framför frá því sem gert var ráð fyrir í deiliskipulaginu 2004 og ástandinu sem var þá. Hjartagarðurinn var hinsvegar mjög skemmtilegt svæði. Kannski var það bara vegna þess hversu tímabundið og hrátt það var. En manni leið óneitanlega frekar þar eins og maður væri velkominn á svæðið miðað við hvernig það er núna. Það er lítið sem ýtir undir að fólk dvelji í þessu almannarými, nema það sé að versla eitthvað við verslanirnar eða hótelið. Þannig eru engir bekkir til að sitja (það er reyndar einn þarna í skugganum af Laugavegi 13, en hann verður seint talinn vel heppnaður).
Ég held að ef flæðið milli Laugavegs og Hverfisgötu hefði haldið sér, þá væri þetta að mörgu leyti skemmtilegra svæða. Í dag er þetta voðalega Stjörnutorgslegt. En kannski verður þetta bara fínt. Hver veit.
Og þó það sé stutt síðan ég sendi þér seinast skeyti, þá er þetta tilvalið tækifæri til að skoða þennan reit örlítið aftur í söguna.
Deiliskipulag fyrir reitinn var samþykkt 2004 og gerði ráð fyrir töluvert mikill uppbyggingu. Byggingarmagn átti að fara úr 9987 m2 í 15.313m2.
Svona leit svæðið út þá:

og svona var deiliskipulagið samþykkt, 2004:

Ástandið 2004 má einnig sjá á þessari loftmynd, sem tekin var 18. júlí, 2004:

Þarna má sjá "skúraröðina" sem hýsti Grammið, bakvið Laugaveg 17. Grand Rokk er þarna á Smiðjustíg og innst inni á bílastæðinu sem er á lóð Hverfisgötu 30 er hús sem hafði heimilisfangið Hverfisgata 32b.Bakvið Hverfisgötu 32 var gamall steinbær, Hverfisgata 32a. (Athugaðu að húsnúmerin á myndinni miða við núverandi lóðamörk).
Á árunum 2004-2006 urðu talsverð viðskipti með eignir á reitnum. Reykjavíkurborg keypti Laugaveg 19 og 19b árið 2006. Áður hafði borgin eignast bakhúsið við Laugaveg 17 og Hverfisgötu 32, 32A, 32B og 34. Lóðina á Hverfisgötu 30 átti borgin einnig. Grand Rokk var selt á 100 milljónir til fjárfesta árið 2006, án aðkomu borgarinnar.
Hoppum nú fram til 15. júlí, 2007:

Hér má sjá útisvæði við Sirkus við Klapparstíg. Bæði bakhúsin á Hverfisgötu 32 hafa verið rifin. Það er augljós akvegur á baklóð Laugavegs 19, þar sem bílar eru geymdir. Hverfisgata 30 er enn stórt bílastæði. Fyrir utan Grand Rokk er komið tjald.
20. júní ári seinna, 2008 eru svo bakhúsin að Laugavegi 17 horfin:

Þar var m.a. Gramm með plötbúð. Þar var Kvennalistinn lengi með skrifstofur og ýmsar verslanir höfðu þar styttri og lengri viðdvöl, svo sem Illgresi, Baka til og ONI.

Árið 2008 voru töluverðar deilur um framtíð reitsins. Til stóð að rífa Laugaveg 21, hið svokallaða Hljómalindarhús, en frá því var fallið þegar húsið var friðað. Hugmyndir eiganda flestra lóðanna, Festa, gerðu á tímabili ráð fyrir 11 hæða hótelturni á miðjum reitnum. Allt vorið og sumarið þetta ár voru töluverðar deilur um framtíðarskipulag við Laugaveg, sem snérust einna helst um verndun húsa og götumyndar. Það átti við um þennan reit, en ekki síst húsin við Laugaveg 4-6. Flest húsin Hverfisgötumegin stóðu auð og voru nærri því ónýt.
Á haustmánuðum höfðu hugmyndir eigandans tekið nokkrum stakkaskiptum, eflaust eftir þrýsting frá borgaryfirvöldum og almenningi. Þá var gert ráð fyrir torgi á reitnum og hæð húsa lækkuð, auk þess sem eldri húsum var hlíft og gert ráð fyrir að þau yrðu endurnýjuð. Töluvertð breyting frá deiliskipulaginu sem samþykkt var 2004. Svona var sagt frá áformunum í október 2008:


Þó nokkur tími átti þó eftir að líða þangað til nýtt deiliskipulag var samþykkt og framkvæmdir hófust. Í millitíðinni tók einhver ákvörðun um að tyrfa svæðið og gera úr því almenningsgarð. Hvort það var borgin eða lóðareigandann veit ég ekki. En þar varð Hjartagarðurinn til. Svona leit hann út í júlí 2010.

Grand rokk er orðið að Faktorý og þakið á Hverfisgötu 28 er rifið til hálfs eftir eldsvoða í janúar 2010. Eftir það var húsið nánast ónýtt. Við Hverfisgötuna stendur lítill krani sem eflaust hefur verið nýttur til að mála vegglistaverk en svæðið var vel skreytt af götulist.
Tveimur árum síðar er allt nokkurnveginn við það sama. Þó hefur bárujárnsgrindverkið við Sirkus verið rifið og portið þar nýtt sem bílastæði. Grand Rokk breyttist í Faktorý 2010 og þar fyrir utan var eitthvað sem var annaðhvort ofvaxið borðtennisborð eða battavöllur. Ég bara man það ekki almennilega.

Í janúar 2013 er loks samþykkt nýtt deiliskipulag fyrir reitinn sem byggir á þeim hugmyndum sem voru kynntar í október 2008. Þar með voru örlog hins unga Hjartagarðs endanlega ráðin.

Á skýringarmyndum með skipulaginu má sjá að gert var ráð fyrir ljósastaurum á torginu með sérstökum festingum. Tilgangur þeirra var að hægt yrði að strengja segl á milli þeirra fyrir markaði eða aðrar uppákomur.


Í greinargerð með skipulaginu var m.a. lögð áhersla á að það myndi bæta aðstöðu til tónleikahalds og halda sögu poppmenningar á svæðinu til haga.

Framkvæmdir hófust svo 2014 og svona leit svæðið út í júlí það ár:

Á loftmynd frá því í júlí í fyrra má svo sjá endanlega mynd reitsins:

Ég veit ekki alveg hvað mér finnst um þetta svæði. Að mörgu leyti er það ágætlega heppnað og það er sannarlega framför frá því sem gert var ráð fyrir í deiliskipulaginu 2004 og ástandinu sem var þá. Hjartagarðurinn var hinsvegar mjög skemmtilegt svæði. Kannski var það bara vegna þess hversu tímabundið og hrátt það var. En manni leið óneitanlega frekar þar eins og maður væri velkominn á svæðið miðað við hvernig það er núna. Það er lítið sem ýtir undir að fólk dvelji í þessu almannarými, nema það sé að versla eitthvað við verslanirnar eða hótelið. Þannig eru engir bekkir til að sitja (það er reyndar einn þarna í skugganum af Laugavegi 13, en hann verður seint talinn vel heppnaður).
Ég held að ef flæðið milli Laugavegs og Hverfisgötu hefði haldið sér, þá væri þetta að mörgu leyti skemmtilegra svæða. Í dag er þetta voðalega Stjörnutorgslegt. En kannski verður þetta bara fínt. Hver veit.
Don't miss what's next. Subscribe to Gögn: